Hangar 1
Contact us today

Property Type

Industrial

Property Size

29,500 sq ft

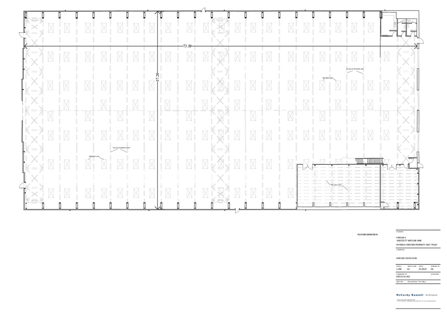
An opportunity to lease a 29,500 sq ft warehouse in a prime central location at Westcott Venture Park. This substantial steel-framed hangar offers flexibility for a wide range of industrial and commercial operations. The facility features multiple loading doors, excellent access and a dedicated car parking area with extensive yard space to the front. Available now on a new lease, terms to be agreed.

  Download floorplan
Hangar 1
Hangar 1
Hangar 1
Hangar 1
Hangar 1
Hangar 1

Interested in this workplace?

For prices and availability, please get in touch either via our enquiry form or using the contact details below.

  Submit an enquiry
  Share property
Joanna Kearvell
+44 (0)1296 398 383
+44 (0)7887 793 030
jk@chandlergarvey.com
Duncan May
+44 (0)1865 985365
+44 (0)1865 985365
duncan.may@bidwells.co.uk
Will Davis
+44 (0)1865 848488
+44 (0)7393 243187
will.davis@cbre.com

Key Features

Three phase power
Loading doors
Single story
Large yard at the front
Kitchen and WC’s
Car parking

Floor plans

Hangar 1-floorplan Hangar 1-floorplan-2

With a vibrant history, well-connected location and an impressive reputation for innovation - Westcott is a secret worth discovering.

Travel distances:

Direct access from the A41

J9 M40: 11 miles

Aylesbury: 7 miles

Bicester: 9 miles

Oxford: 20 miles

Milton Keynes: 21 miles

Heathrow Airport: 48 miles

Central London: 49 miles

what3words location: slopes.sprinkler.hippy

Like one of our spaces?

Or contact us


Westcott Venture Park,
Westcott, Aylesbury,
Buckinghamshire,
HP18 0XB

© 2026 Westcott Venture Park